Die Dachwohnung

2-Gartenwohnung-Terasse

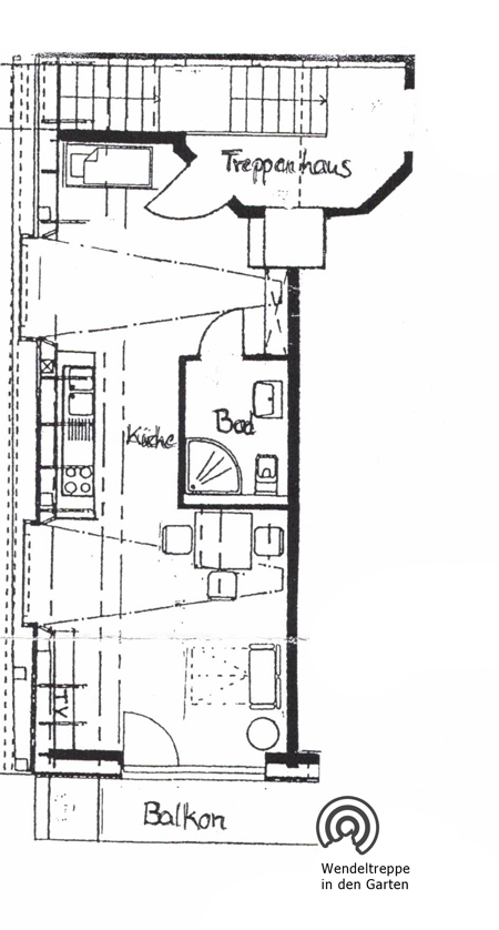
Die Dachwohnung ist 30qm groß. Es handelt sich dabei vor allem um einen kombinierten Wohn-Schlafraum. Auch diese Wohnung verfügt über eine Wandheizung aus Lehmputz.

2-Gartenwohnung-Wohnzimmer

Alles ist offen gehalten. Eine Küchenzeile - mit Geschirrspüler und Backofen -
trennt das Einzelbett vom Wohnzimmer.

2-Gartenwohnung-Kueche

Ein Bett für eine Person steht im vorderen Bereich und ist groß genug auch für einen Erwachsenen (90/200cm).

2-Gartenwohnung-Wohnschlafraum

Das WC/Duschbad ist natürlich abschließbar!

2-Gartenwohnung-Wohnschlafraum

Die Wohnung ist auch über eine Wendeltreppe aus dem Garten zugänglich. Die Wohnung hat hier auch einen Balkon.

Grundriss der Dachwohnung

Ferien - Gartenwohnung